Participação em Concurso de Projeto

Nova Câmara Municipal de Foz do Iguaçu

Nossa proposta é a de uma arquitetura aberta e acolhedora, que reforça o caráter democrático da instituição ao criar um espaço verdadeiramente público — acessível, simbólico e de convivência.

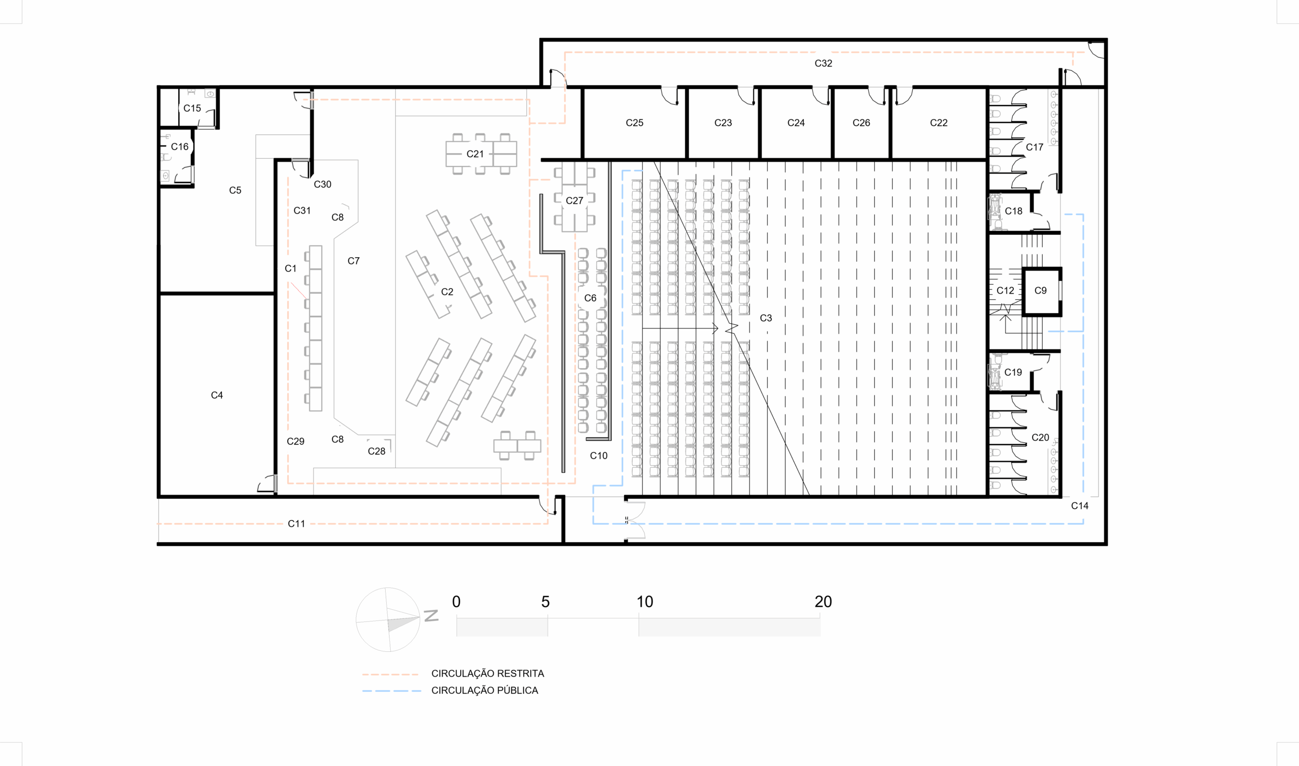
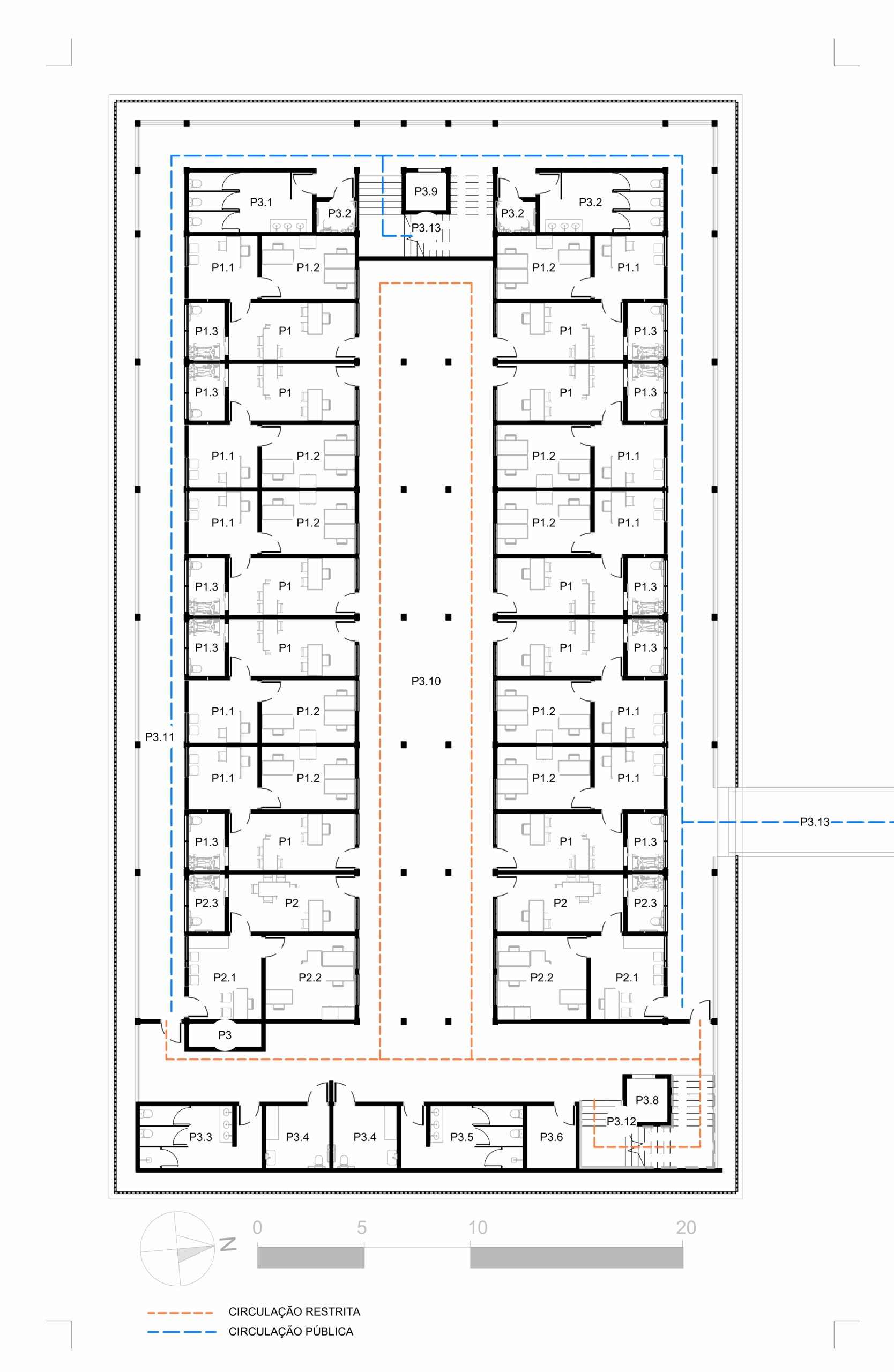
Três edifícios interligados por pontes sobre um espelho d’água conformam uma praça central, onde o cidadão é convidado a participar e se reconhecer como parte ativa do espaço. Essa configuração equilibra transparência e segurança, separando fluxos públicos e administrativos de forma clara e eficiente.

O espelho d’água remete à geografia de Foz do Iguaçu, cidade contornada por rios e pontes, enquanto uma segunda pele em elementos cerâmicos garante conforto térmico, ventilação natural e unidade visual.

Com materiais simples — concreto e cerâmica —, o conjunto expressa austeridade e permanência, sem perder a escala humana e o acolhimento.

 
 

Autor: Arq. Rafael Ramires

Autora: Arq. Aline Helena

Resp. Técnica: Arq. Eng. Georgia Palacio

Arquiteta Paisagista: Arq. Carolina Mariela

Renderização: Lucas Breves